设计与制造:API599
结构长度:ISO 5752(短系列)
法兰标准:ASME B16.5
公称压力:Class150, Class300
连接方式:法兰式
压力试验:API 598
操作方式:手柄,气动,电动
| 遵循规范 | |
| 设计与制造: | API599 |
| 结构长度: | ISO 5752(短系列) |
| 法兰标准: | ASME B16.5 |
| 公称压力: | Class150,Class300 |
| 连接方式: | 法兰式 |
| 压力试验: | API 598 |
| 操作方式: | 手柄,气动,电动 |
| 基本型号 | 公称压力(磅级) ANSI CL150(全衬里) ANSI CL150-CL300(卡套式) 公称通径(英寸)NPS1/2-10 | ||
| 手动 | 气动 | 蜗轮转动 | 电动 |
| X43F(卡套式) | X643F(卡套式) | X343F(卡套式) | X943F(卡套式) |
| X43F46(全衬) | |||
| 主要零部件材料表 | ||||
| 序号 | 零件名称 | 灰铸铁 | 碳钢 | 不锈钢 |
| Z | C | P | ||
| 1 | 阀体、阀盖 | HT250 | WCB | CF8 |
| 2 | 阀座/卡套 | PTFE(F4) | ||
| 3 | 塞子 | O22Cr25Ni7Mo4N-Mo5N CF8 CF3 | ||
| 4 | 调节垫片 | RPTFE(增强F4) | ||
| 5 | O型圈 | FPM(氟橡胶) | ||
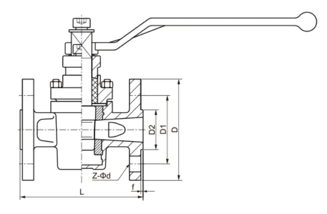
| 主要连接尺寸及重量 | |||||||||
| 公称通径 | 标准值 | ||||||||
| DN(mm) | NPS(inch) | L | D | D1 | D2 | f | b | Z-Φd | Kg |
| Class150Lb | |||||||||
| 15 | 1/2 | 108 | 90 | 60.3 | 35 | 2 | 10 | 4-Φ16 | 2 |
| 20 | 3/4 | 117 | 100 | 69.9 | 43 | 2 | 10.9 | 4-Φ16 | 3 |
| 25 | 1 | 127 | 110 | 79.5 | 51 | 2 | 11.6 | 4-Φ16 | 4.5 |
| 32 | 1 1/4 | 140 | 115 | 89 | 64 | 2 | 13.2 | 4-Φ16 | 5.2 |
| 40 | 1 1/2 | 165 | 125 | 98.5 | 73 | 2 | 14.7 | 4-Φ16 | 7.5 |
| 50 | 2 | 178 | 150 | 120.5 | 92 | 2 | 16.3 | 4-Φ19 | 11 |
| 65 | 2 1/2 | 190 | 180 | 139.5 | 105 | 2 | 17.9 | 4-Φ19 | 12.5 |
| 80 | 3 | 203 | 190 | 152.5 | 127 | 2 | 19.5 | 4-Φ19 | 18 |
| 100 | 4 | 229 | 230 | 190.5 | 157 | 2 | 24.3 | 8-Φ19 | 23 |
| 125 | 5 | 254 | 255 | 215.9 | 186 | 2 | 24.3 | 8-Φ22.5 | 32 |
| 150 | 6 | 267 | 280 | 241.5 | 216 | 2 | 25.9 | 8-Φ22.5 | 52 |
| 200 | 8 | 292 | 345 | 298.5 | 270 | 2 | 29 | 8-Φ22.5 | 115 |
| 250 | 10 | 330 | 405 | 362 | 324 | 2 | 30.6 | 12-Φ25.5 | 195 |
| Class300Lb | |||||||||
| 15 | 1/2 | 140 | 95 | 66.7 | 35 | 2 | 14.7 | 4-Φ16 | 2.5 |
| 20 | 3/4 | 152 | 115 | 82.6 | 43 | 2 | 16.3 | 4-Φ19 | 4 |
| 25 | 1 | 165 | 125 | 88.9 | 51 | 2 | 17.9 | 4-Φ19 | 5 |
| 32 | 1 1/4 | 178 | 135 | 98.4 | 64 | 2 | 19.5 | 4-Φ19 | 6 |
| 40 | 1 1/2 | 190 | 155 | 114.3 | 73 | 2 | 21.1 | 4-Φ22.5 | 0.5 |
| 50 | 2 | 216 | 165 | 127 | 92 | 2 | 22.7 | 8-Φ19 | 13 |
| 65 | 2 1/2 | 241 | 190 | 149.2 | 105 | 2 | 25.9 | 8-Φ22.5 | 15 |
| 80 | 3 | 283 | 210 | 168.3 | 127 | 2 | 29 | 8-Φ22.5 | 24 |
| 100 | 4 | 305 | 255 | 200 | 157 | 2 | 32.2 | 8-Φ22.5 | 27 |
| 125 | 5 | 381 | 280 | 235 | 186 | 2 | 35.4 | 8-Φ22.5 | 40 |
| 150 | 6 | 403 | 320 | 270 | 216 | 2 | 37 | 12-Φ22.5 | 65 |
| 200 | 8 | 419 | 380 | 330 | 270 | 2 | 41.7 | 12-Φ25.5 | 145 |
| 250 | 10 | 457 | 445 | 387.5 | 324 | 2 | 48.1 | 16-Φ28.5 | 255 |
Zhejiang Lierdao Valve Co., Ltd
咨询热线 0577-86860737
公司地址:
浙江温州龙湾空港新区金海三道903号
扫码咨询更多:
Copyright © 2026 浙江利尔多阀门有限公司 All Rights Reserved.